Courtesy of Kerri-lyn Holland of RE/MAX River City
MLS® # E4466211
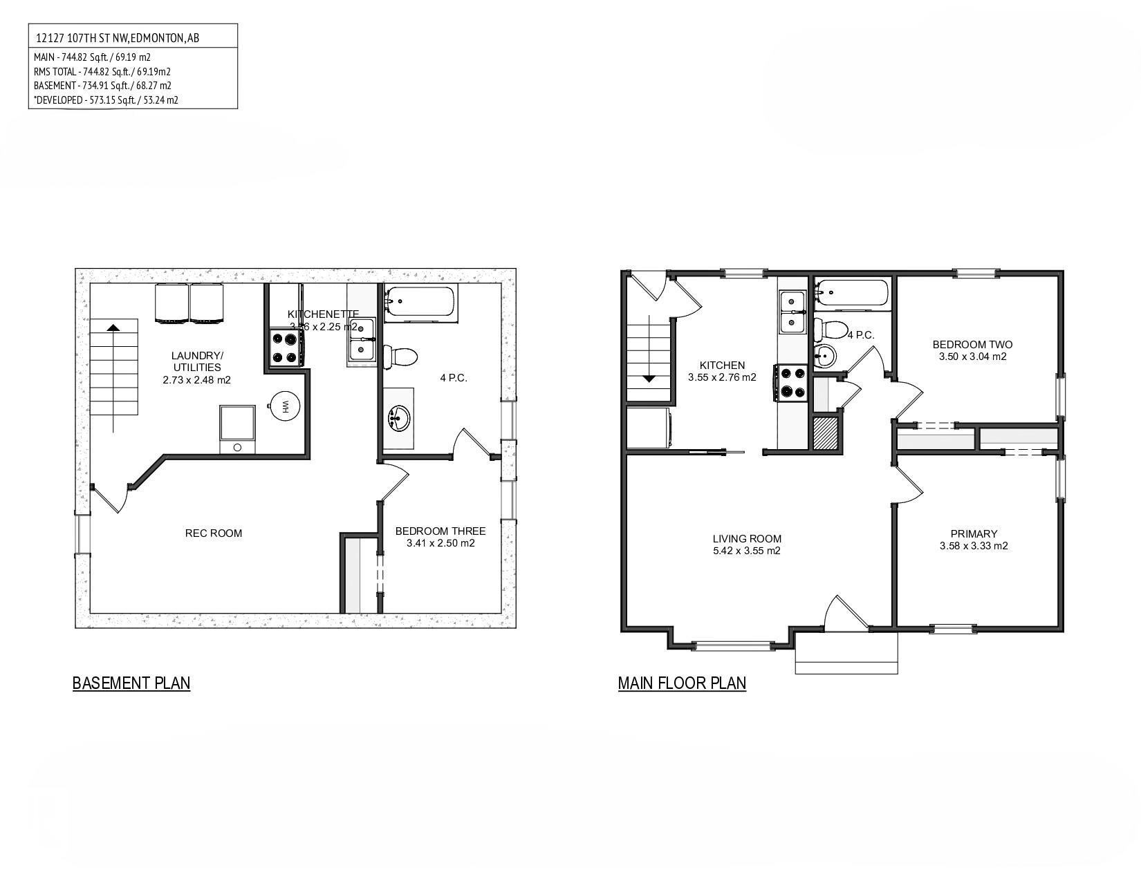
Westwood - Incredible opportunity for Land Development/Holding/Rental Property - just steps away from NAIT – the perfect location for redevelopment! This excellent rental property has seen many upgrades throughout the years. Encompassing 744sqft on the main floor & 734sqft in the basement (573sqft finished space) - 3 bedrooms (2 plus 1), 2–4-piece bathrooms & 2 FULL kitchens – first-time buyers or investor – this is the home for you! The lot is 42ft x 150ft - 6292sqft lot with many possibilities for deve...